Lotes a 700 mts Lomas de Granada – MIRAVALLE

  • $35,000,000
POPAYAN
En Venta Oferta
Lotes a 700 mts Lomas de Granada – MIRAVALLE
POPAYAN
  • $35,000,000

Descripción general

Identificación de propiedad: HZ18880
  • Lote
  • Tipo de propiedad
  • 6 mts de frente * 12 mts de fondo

Descripción

DESCUENTOS 🤑📉

Si usted se encuentra entre las personas que cuentan con SISBEN, certificado de desplazado, o pertenece a grupo policía, ejercito, se puede realizar un descuento de $ 500.000 del valor total. El lote lo puede escoger a su gusto.

ZONAS SOCIALES 🧑‍🧑‍🧒‍🧒❤️

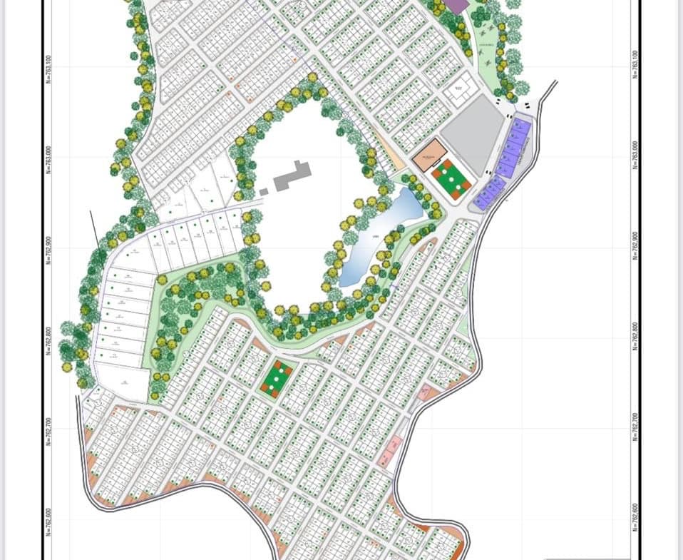
Se van a construir 2 canchas multiplex, 1 salón social, 1 sendero ecológico y el lago será el centro de atracción de todo el proyecto. Se incorporarán bahías de parqueo y un parque para niños.

ÁREA 🏡✨

Todos los lotes tienen una medida de 6 mts de frente por 12 mts de fondo. Libre de 1 mt de andén.

ESCRITURAS 📝📌

Miravalle cuenta con 6 manzanas, de las cuales 5 ya cuentan con escrituras individuales, cada predio tiene su matrícula individual. En el momento, en la manzana 1 quedan lotes de 45 mts y 50 mts (todos con escritura), y la manzana 6 apenas se lanzó, por lo cual en más o menos 2 o 3 meses ya tendrían matrículas individuales.

El proyecto cuenta con viabilidad de agua 🚿 y energía 💡, permisos para uso de suelos (parcelable) y ya radicó toda la papelería en la CRC para el tema del permiso de vertimientos. Asi que se puede empezar a construir a partir de Junio del 2026.

Se entrega con redes de acueducto, energía, alcantarillado y las zonas comunes (salón social, dos canchas y el sendero ecológico) 🏕️🌳☀️

Detalles

Updated on octubre 24, 2025 at 2:50 pm
  • Identificación de propiedad: HZ18880
  • Precio: $35,000,000
  • Tamaño de la propiedad: 6 mts de frente * 12 mts de fondo
  • Tipo de propiedad: Lote
  • Estado de la propiedad: En Venta

Detalles adicionales

  • MIRAVALLE: 35000000

0 Review

Sort by:
Leave a Review

Leave a Review

Compare listings

Compare
Mejia2023
  • Mejia2023